Vista Lodge Accomodation
Three sizes for great site mix. Designed for a core structural life of 40 years (the galvanised 5mm rolled steel frame is the same as we use to build houses). They are made to feel like a home with a touch of difference.
Using a mix of solid Sweet Chestnut timber walling and a painted finish, the lodges are designed to give a feeling of space. The side aspect – as opposed to end view – allows clients better views of the countryside, hence Vista Accommodation. The single bed unit is 31 square metres gross, the twin bedroom is 52 square metres gross and the extra large two bedroom unit, 78 square metres gross.
The standard insulation is 75mm PIR sandwich panel in the walls with additional mineral wool slab insulation. The low pitched roof has both 50mm of PIR and a total of 100mm of mineral wool slab insulation. The floor has mineral wool insulation in the steel frame cassette. The exterior cladding is waney edged Red Cedar, the roof a sheet membrane. The floors are engineered solid timber non slip planks.
Studio Vista
The smallest of the three lodges. The lodge is shown as an illustration as well as a layout. At 8.4 metres x 3.7 metres it is a good sized space for either the holiday or nightly booking market. Combining the sleeping, lounge and eating area as one, gives an open plan feeling. The sleeping area is designated by the fitting to the walls of the British Sweet Chestnut timber. The bed area has a 1,500 mm width between the bedside shelves. The two tower cupboards either side match the kitchen, so providing plenty of hanging and shelf space. Fitted with a breakfast bar with a window directly ahead, allows the clients great views of the surrounding countryside. The oven and hob combined with the under counter fridge with ice box provides the basics for cooking. There is room for a microwave, kettle and toaster.
Vista Lodge
At 9 metres long and 5.8 metres deep this two bedroom lodge has a Sweet Chestnut feature wall in each bedroom. With a family bathroom including a 1,400 mm wide shower, this module is ideal for the holiday market. Having a well equipped kitchen and plenty of lounge space overlooking the 2.4 metres of BIFOLD doors, the clients will fi nd plenty to like. Clad in British Red Cedar, and with the pitched sheet mineral roof, this is a great investment.
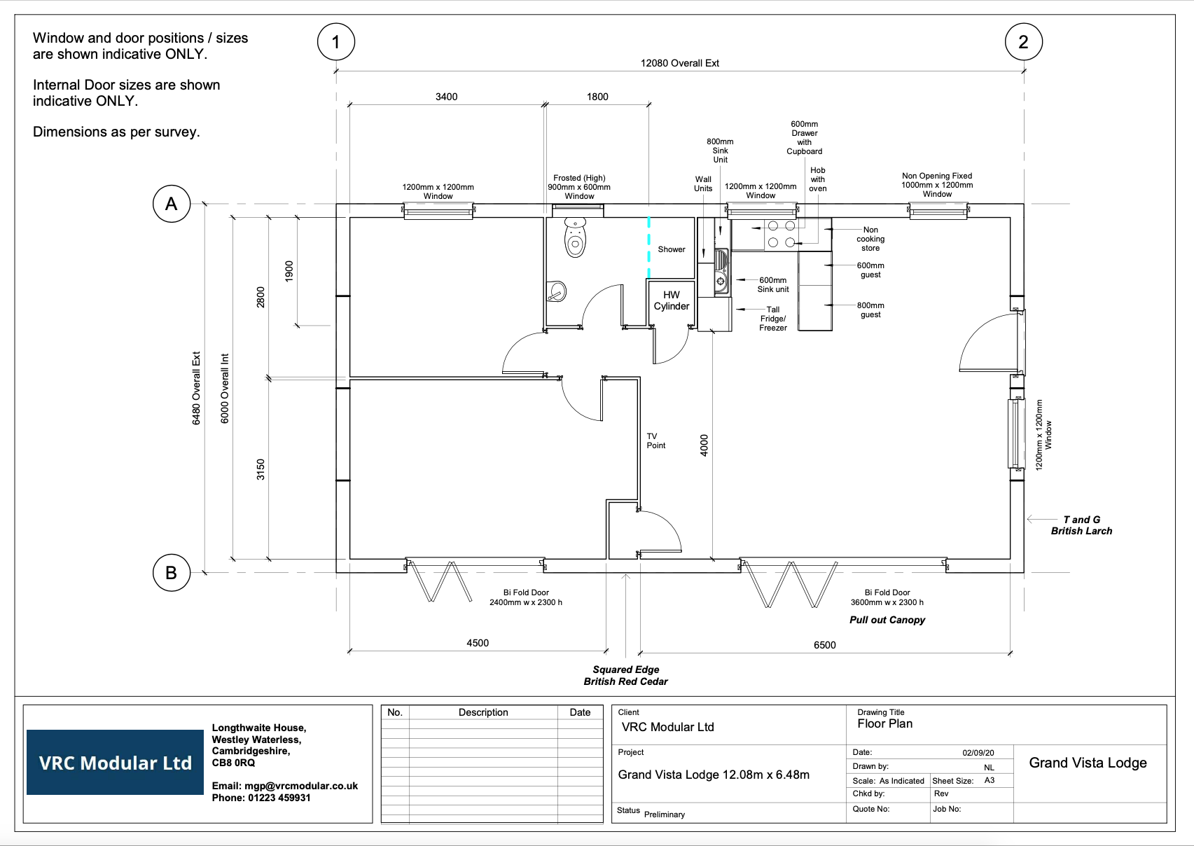
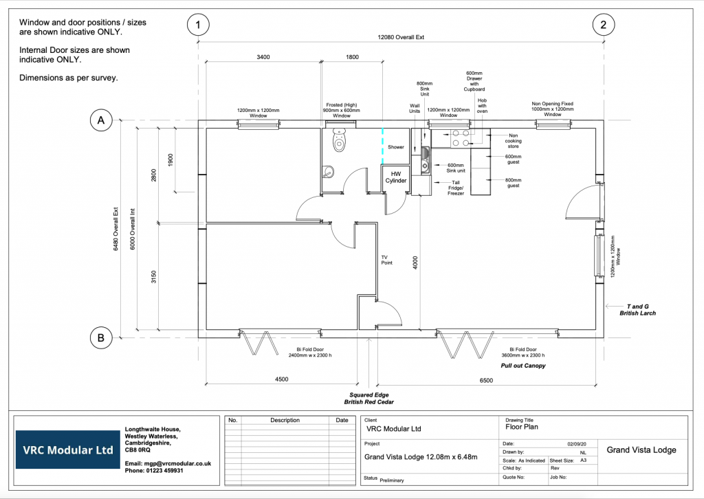
Grande Vista
The name says a lot. Over 12 metres long and just short of 6.5 metres wide, this fabulous lodge makes a statement with the 6 metres in total of BIFOLD doors. Unlike the Studio Vista and the Vista Lodge the interior is clad in tongue and groove British Larch. There is plenty of space for dining and lounging on settees. This lodge size can be re configured to have three bedrooms.
Finance
We can offer finance from our partners for the purchase of our modules. At this time we understand that cash in the bank is very important, so helping you to conserve your cash whilst expanding your assets may well be an ideal solution. The options include no deposit plans as well as standard lease terms. Please let us know if this is an option you would be interested in.
Discover how our Vista Pods could be the solution you need



